CEP ARA
0538 061 63 62
info@karadenizhavalandirma.com.tr
Kuzeykent Mah., Kamil Demirci Cad., K Blok No:1, Kastamonu
ANASAYFA
KURUMSAL
ÜRÜNLER
Klima Santrali
Kanallı Klima Cihazı
Aspiratör, Vantilatör
Havalandırma Kanalı
Baca
Isı İzolasyonu
Akustik İzolasyon
Menfez
Filtreler
REFERANSLAR
FİYAT TABLOSU
YAPILAN İŞLER
İLETİŞİM
ANASAYFA
KURUMSAL
ÜRÜNLER
Klima Santrali
Kanallı Klima Cihazı
Aspiratör, Vantilatör
Havalandırma Kanalı
Baca
Isı İzolasyonu
Akustik İzolasyon
Menfez
Filtreler
REFERANSLAR
FİYAT TABLOSU
YAPILAN İŞLER
İLETİŞİM
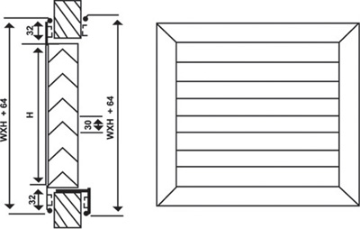
Kapı Transfer Menfezleri
anasayfa
ürünler
menfez
kapı transfer menfezleri
Kapı Transfer Menfezleri
Komşu mahalleler arasında hava transfer menfezi olarak kullanılır. Minimum bölme kalınlığı 300 mm'dir. Her iki yöndeki çerçevileri ile dekoraktif Her iki yöndeki çerçevi.